Appartement T2 à Rennes

Retour au résultat

RENNES / centre / Ref : 107215

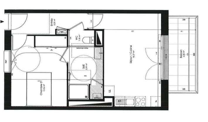
Appartement T2 / 1 chambre / 44 m²
Appartement T2 à Rennes Appartement T2 à Rennes Appartement T2 à Rennes Appartement T2 à Rennes Appartement T2 à Rennes

GUENNO IMMOBILIER MET A VOTRE DISPOSITION A ACIGNE, à 10 minutes de Rennes, dans un cadre verdoyant proche des commerces, un appartement T2. Ce logement est composé d'un entrée, d'un séjour lumineux donnant sur un balcon plein sud, d'une cuisine équipée et aménagée, d'une chambre avec placards, d'un salle d'eau avec WC et d'une place de parking Bien soumis aux conditions de ressources de la loi PINEL GUENNO IMMOBILIER, LE PLUS GRAND CHOIX DE BIENS A RENNES Les informations sur les risques auxquels ce bien est exposé sont disponibles sur le site Géorisques : www.georisques.gouv.fr

Nos honoraires

Les + du bien

Appartement neuf - centre-ville d'Acigné - 10 minutes de Rennes - environnement verdoyant - balcon plein sud - cuisine équipée - placards - parking

Consommation énergétiqueC
Emission GESC

Vous recherchez un T3 pour avoir un pied à terre confortable doté de deux pièces indépendantes à RENNES à la location ? Guenno Immobilier vous propose de nombreux appartements à la location à RENNES. Tous nos appartements sont au meilleur prix du marché et nos nombreuses agences immobilières vous assurent un service de proximité.